BuildMeUp
  • Specifications
    • 3
    • 2
    • 1
    • 0
    • 113m2
  • Member
    Fraemohs Homes
  • Location
    Canterbury
  • Category
    House Plans

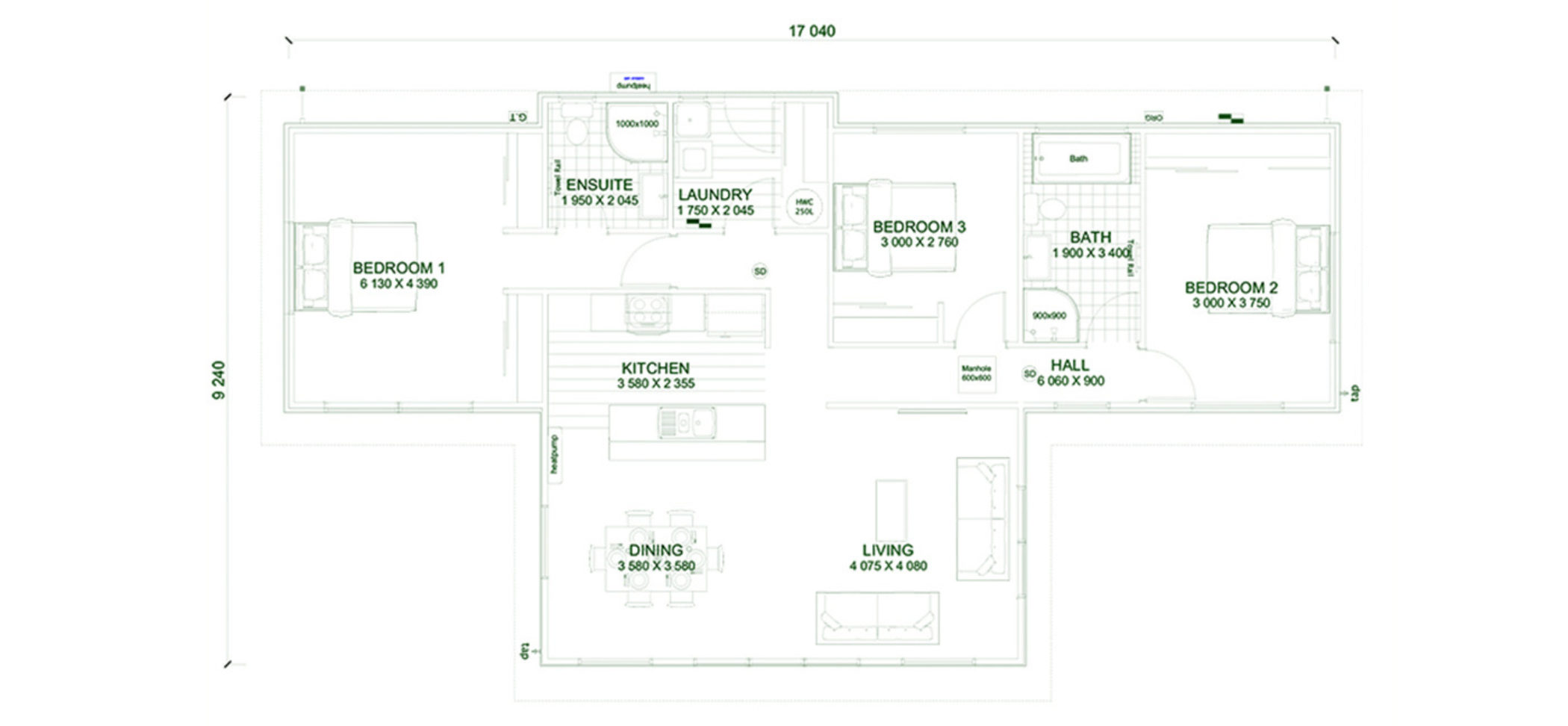
This compact home is designed to maximise space and is ideal for guests. Two bedrooms and a bathroom complete with bath and separate shower are at one end, and the master suite with its own ensuite and double robes is situated at the other end.

We provide a full build option within Canterbury, or can supply a kitset version anywhere in New Zealand. All Timbermode kitset home plans can be customised to suit your own specific needs.

Plans & Images:

Sign In

Forgot your password? Retrieve

Register for free

Are you a building industry professional? Click here instead

Note: Password must be a minimum of 6 characters

Your Privacy

We're here to help!

Freephone

Email
info@buildmeup.co.nz

Contact page

At BuildMeUp we are serious about protecting your privacy. We may ask for the following personal information:

This is to enable us to:

With your consent, we may also:

We will not email you unless you have given us your consent. We will not pass your details to other trusted traders unless you agree. We do not sell or rent personal information to third parties. 

The information we hold will be secure, accurate and up to date. You can check the information that we hold about you by contacting us. If you find any inaccuracies, we will delete or correct it promptly.